834400W

Cosmo Care Concealed Connector Pan - S Trap

RRP $427.00

White
White
Product overview
Technical info
Related Products
Product overview
  • Concealed connector style
  • 4.5/3L WELS 4 star rated
  • Suitable for persons with disabilities
  • No seat included, Pressalit 2000, Avalon Commercial, Caravelle recommended
  • Vitreous china, white only
  • Price includes Pan only
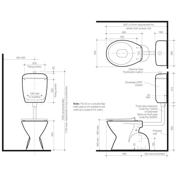
Technical Information
Specifications
item code834400W
product typesCare Pans
brandCaroma
colourWhite
item materialVitreous China
trap typeS Trap
pan height445 mm
pan projection size0 mm
CleanflushNo
wels with flow rate flush volume 1WELS 4 Star Rated, 4.5L/3L (3.5L Average Flush)
Independent Living CompliantYes
NZS 4121 CompliantYes
Technical Downloads
Measurements